Design
Photography
Research
Résumé
Contact
Design
Photography
Research
Résumé
Contact
Jack Sivyer Jack Sivyer

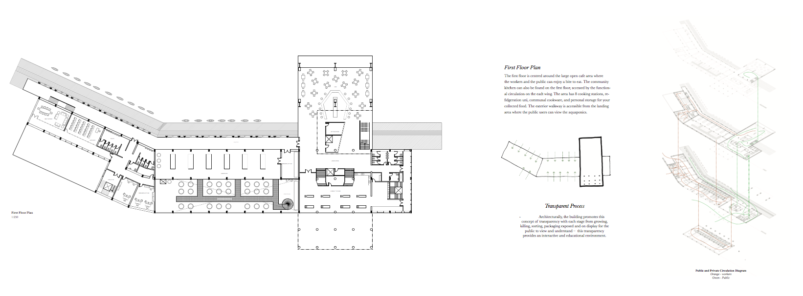
The Aquaponic Industry

Academic project based in Quidhampton Quarry, Salisbury. This project explores concepts related to aquaponics, sustainability and community participation.

You may also like

Myco-Ville: Sustainable Cooperative
2024
The Environmental Moderator
2016
A Healthy Salisbury
2017
Photography
2014
A Place of Knowledge & Exchange
2023
The Ruin
2015
Cohousing Project
2015
A Discrete Construct
2023
Headquarters
2015
Observational Study
2021
↑Back to Top
Powered by Adobe Portfolio